Listed by Robin Shover of EXP Realty (Cell: 802-373-4949)
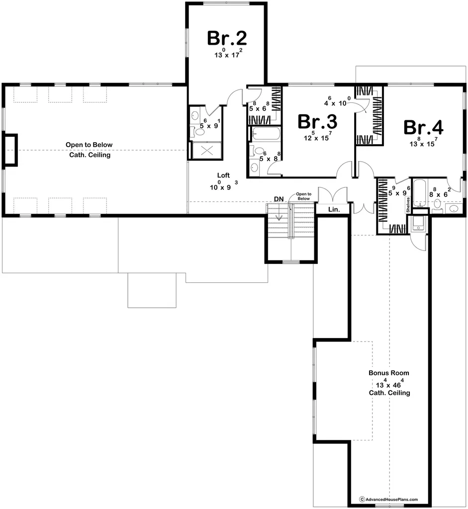
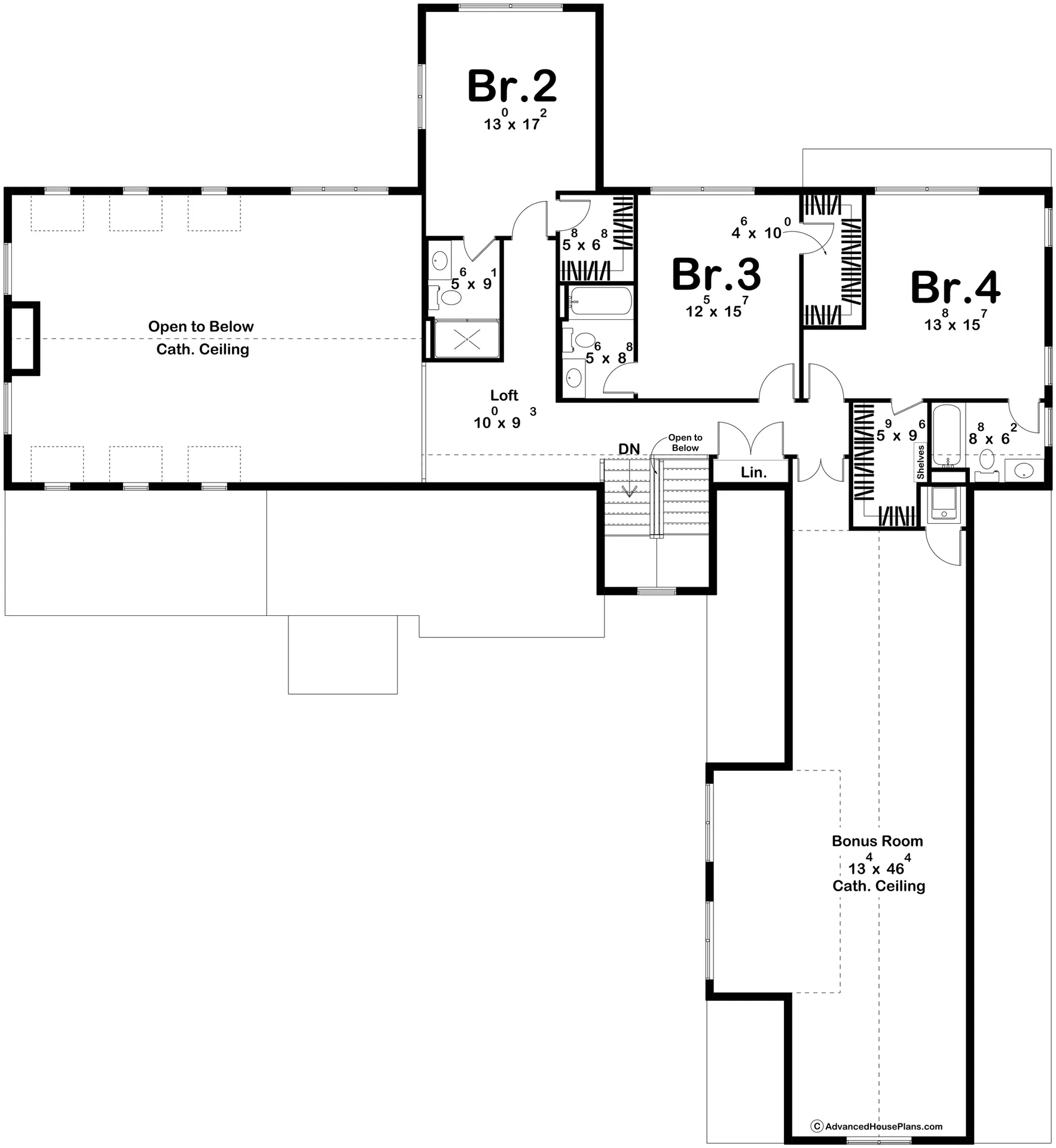
Ultimate luxury direct waterfront living! A rare opportunity to own new construction on Lake Champlain. This is the last beachfront lot in the peaceful enclave of Bay Manor Estates. A new Shover Construction custom home with designer finishes offers 119' of owned sandy beach! All permits are in hand for up to 5 bedrooms; building can begin in 2025. Our elevated 2-story Modern Farmhouse design features 4 spacious bedrooms, 4 baths, with an open main living area encompassing a generous kitchen and extensive views of the lake. Make a stylish statement throughout based on stone, cabinet, flooring, paint, and trim choices. Add our exceptional design concierge to complete a dream team to make the process even smoother! The dining and great rooms feature a 25 ft cathedral with a 2-story stone fireplace centerpiece. The impressive 1st floor primary suite also claims panoramic water vistas and 10' ceilings. The 2nd floor consists of 3 bedrooms, 9' ceilings, and a 766 sq ft flexible room over the 3-car garage. The basement offers 1,010 sq ft of space to customize. Access the lakeside covered porch from the first floor with unspoiled views, sunsets, perfect for alfresco dining or simply a peaceful evening. Located on a quiet cul-de-sac with 14 acres of common land and proximity to trails, the BTV bike path, colleges, and the UVM Medical Center. A blank canvas ready to paint; the beauty of building a new home fully customizable to a new owner's adoration vs renovating someone else's!

Listing Tools

Property Details of 143 Jen Barry Lane

Property Details

Interior Features

Exterior Features

Community

Map Location

Driving Directions

Broker Reciprocity 

Copyright 2025 PrimeMLS, Inc. All rights reserved. This information is deemed reliable, but not guaranteed. The data relating to real estate displayed on this display comes in part from the IDX Program of PrimeMLS. The information being provided is for consumers’ personal, non-commercial use and may not be used for any purpose other than to identify prospective properties consumers may be interested in purchasing. Data last updated November 18, 2025 12:08 AM EST

 

Hi there! How can we help you?

Contact us using the form below or give us a call.

Send Us A Message:

I agree to receive marketing and customer service calls and text messages from Brian Boardman of Coldwell Banker. To opt out, you can reply 'stop' at any time or click the unsubscribe link in the emails. Consent is not a condition of purchase. Msg/data rates may apply. Msg frequency varies. Privacy Policy.

Do not fill in this field:

This site is protected by reCAPTCHA and the Google Privacy Policy and Terms of Service apply.