Listed by Brandon Fowler of RE/MAX North Professionals

Sold by The Nancy Jenkins Team, Nancy Jenkins Real Estate
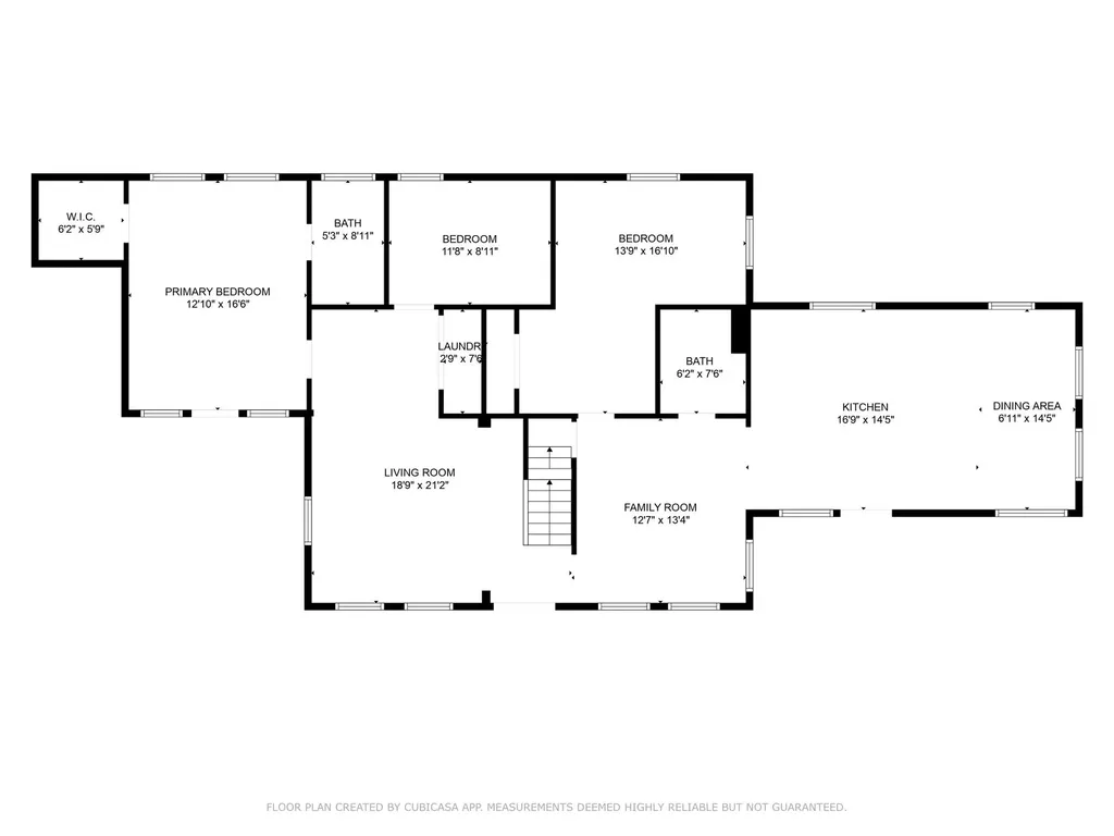
If you're looking for a nicely updated home with tons of space and the ability to live on the first floor, this home may be for you. Just a short walk to downtown Northfield and all of its shops, restaurants, and markets, the location of this home is ideal for getting involved in the community. The long driveway gets you and yours away from the main road. Enter through the huge eat-in kitchen, the first floor is expansive; offering a family room and living room as well as a bonus room and 2 bedrooms. Laundry is on the first floor as well as the primary suite complete with a full bathroom and walk-in closet. The basement is dry and spray foamed for efficiency. The second floor has 2 more bedrooms and a half bathroom. Although this house is in flood zone x, it did not see any water inside the house during the 2023 or 2024 flood events.

Listing Tools

Property Details of 302 Water Street

Property Details

Interior Features

Exterior Features

Community

Other Details

Map Location

Driving Directions

Broker Reciprocity 

Copyright 2026 PrimeMLS, Inc. All rights reserved. This information is deemed reliable, but not guaranteed. The data relating to real estate displayed on this display comes in part from the IDX Program of PrimeMLS. The information being provided is for consumers’ personal, non-commercial use and may not be used for any purpose other than to identify prospective properties consumers may be interested in purchasing. Data last updated January 15, 2026 7:08 PM EST

 

Hi there! How can we help you?

Contact us using the form below or give us a call.

Send Us A Message:

I agree to receive marketing and customer service calls and text messages from Brian Boardman of Coldwell Banker. To opt out, you can reply 'stop' at any time or click the unsubscribe link in the emails. Consent is not a condition of purchase. Msg/data rates may apply. Msg frequency varies. Privacy Policy.

Do not fill in this field:

This site is protected by reCAPTCHA and the Google Privacy Policy and Terms of Service apply.