Listed by Nicole Broderick of Coldwell Banker Hickok and Boardman (Phone: 802-522-7877)

Sold by Claire Kavanagh, EXP Realty
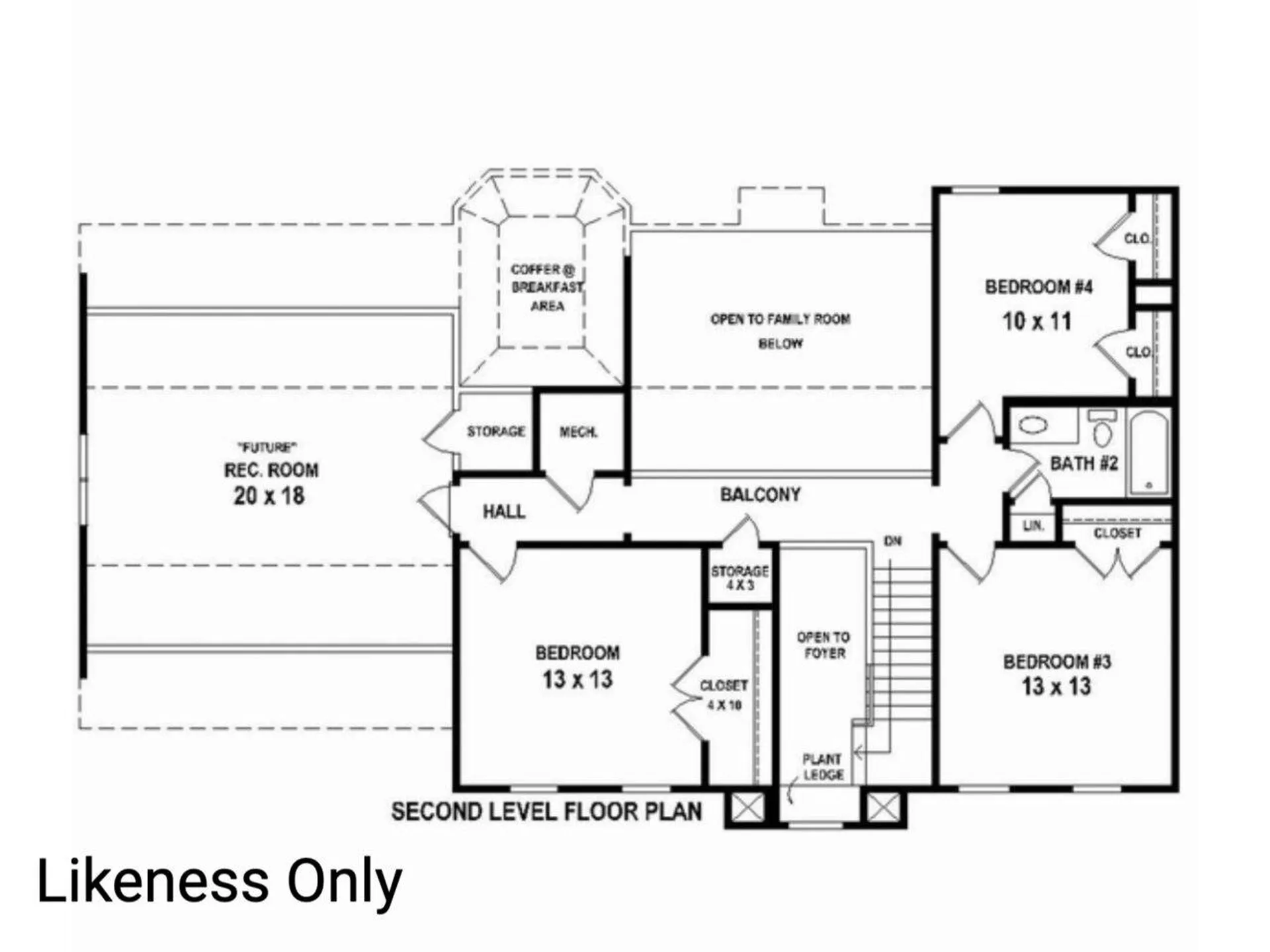
Now available: the last, sprawling building lot in this beautiful Saint Albans Town neighborhood, and it's yours for the taking! Tucked away off of Cody Drive, and minutes to all local amenities, including Saint Albans Bay, Hard'ack Recreational Facility, Collins Perley Sports Center, and an array of local restaurants, the location can't be beat. This new construction opportunity presents a stunning Colonial-style build, offering 4 bedrooms, 2.5 bathrooms, and the luxury of first floor living. Enjoy a spacious breakfast nook, large sun-lit kitchen, airy family room, and first floor laundry, paired with the convenience of first floor primary bedroom space. Upstairs offers three additional bedrooms, and a full bathroom, with plenty of square footage to meet your needs. Nestled on 1.72 acres with unparalleled sunset views, the included composite deck is the perfect place to take them in. Offered as a turn-key package or via construction loan, the build completion is estimated for December of 2025. All photos and plans are Likeness Only, final details to be solidified in a Construction Agreement with the builder. Make an appointment today to explore your options, bring your ideas, and secure this beautiful new-construction opportunity before it's gone!

Listing Tools

Property Details of 52 Cody Drive

Property Details

Interior Features

Exterior Features

Community

Map Location

Driving Directions

Broker Reciprocity 

Copyright 2026 PrimeMLS, Inc. All rights reserved. This information is deemed reliable, but not guaranteed. The data relating to real estate displayed on this display comes in part from the IDX Program of PrimeMLS. The information being provided is for consumers’ personal, non-commercial use and may not be used for any purpose other than to identify prospective properties consumers may be interested in purchasing. Data last updated May 28, 2026 9:40 AM EDT

 

Hi there! How can we help you?

Contact us using the form below or give us a call.

Send Us A Message:

I agree to receive marketing and customer service calls and text messages from Brian Boardman of Coldwell Banker. To opt out, you can reply 'stop' at any time or click the unsubscribe link in the emails. Consent is not a condition of purchase. Msg/data rates may apply. Msg frequency varies. Privacy Policy.

Do not fill in this field:

This site is protected by reCAPTCHA and the Google Privacy Policy and Terms of Service apply.