Listed by Robert Foley of Flat Fee Real Estate

Sold by Geri Reilly, Geri Reilly Real Estate
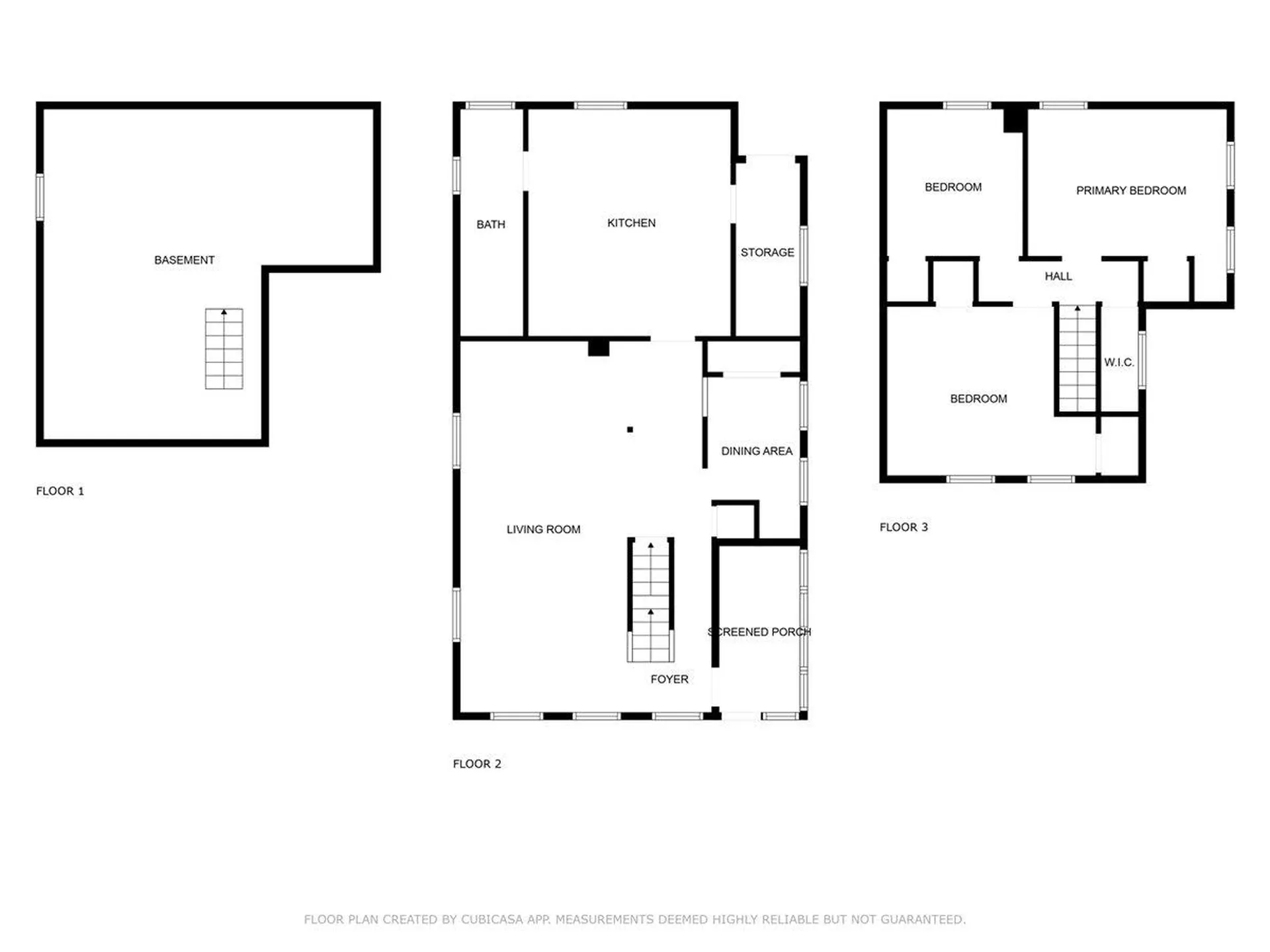
Potential and possibilities await the future owner of this charming Winooski fixer upper located on a quiet street and close to everything the City has to offer. Perfect as either a starter home or for its investment potential, this home has a lot to offer. You enter the first floor of the home through the enclosed porch which can double as a mudroom. The lower level of the home features a large open living area with hardwood floors and brick accent wall. The lower level also has an eat-in kitchen and the home's full bath. The upper level features three spacious bedrooms and large storage closet. In the basement you will find storage space as well as the home's boiler that was installed in 2023 and the electrical panel that was installed in 2019. Outside there is plenty of space for gardening and the home's detached oversized garage is perfect for those who need space for a wood shop or other hands-on endeavors. The City of Winooski boasts a vibrant downtown scene with restaurants, shops and more and not only is Burlington just across the River, it is an easy spot to jump on the Interstate to get to points both north and south. A great find and a must see.

Listing Tools

Property Details of 65 River Street

Property Details

Interior Features

Exterior Features

Community

Other Details

Map Location

Driving Directions

Broker Reciprocity 

Copyright 2026 PrimeMLS, Inc. All rights reserved. This information is deemed reliable, but not guaranteed. The data relating to real estate displayed on this display comes in part from the IDX Program of PrimeMLS. The information being provided is for consumers’ personal, non-commercial use and may not be used for any purpose other than to identify prospective properties consumers may be interested in purchasing. Data last updated February 10, 2026 10:09 AM EST

 

Hi there! How can we help you?

Contact us using the form below or give us a call.

Send Us A Message:

I agree to receive marketing and customer service calls and text messages from Brian Boardman of Coldwell Banker. To opt out, you can reply 'stop' at any time or click the unsubscribe link in the emails. Consent is not a condition of purchase. Msg/data rates may apply. Msg frequency varies. Privacy Policy.

Do not fill in this field:

This site is protected by reCAPTCHA and the Google Privacy Policy and Terms of Service apply.